紀の国住宅の建売

KNOCK HOUSEは和歌山エリアの
建売住宅をご紹介

×

プラン①

「ちょうどいい、が一番いい。」

プラン①

安心のコミコミ価格

本物件は、外構工事費・照明器具費・現場経費・建築確認申請費用まで含めた、分かりやすいコミコミ価格です。
さらに、長期優良住宅認定を取得し、断熱等級5を標準仕様として採用。快適性と将来の資産価値にも配慮しています。

加えて、LDKにはエアコンを標準装備。
ご入居後すぐに快適な新生活を始めていただけます。

「あとから費用が増える」心配を極力抑え、最初から必要なものをすべて揃えた住まいです。

ギャラリー

間取り

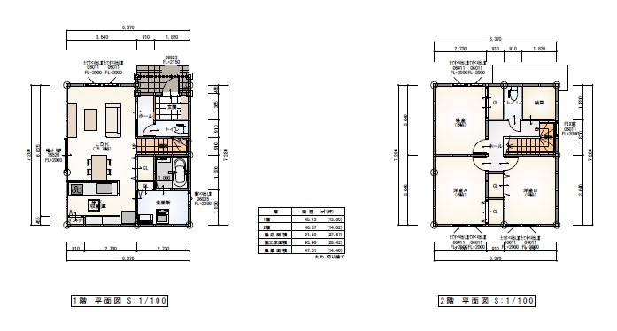
間取り画像

■ コンパクトでも広く感じる、無駄のない総2階プラン
延床約27坪のコンパクト設計ながら、廊下を極力省くことで居住空間を最大限に確保。建売住宅にありがちな窮屈さを感じさせない、効率的な間取りです。

■ 1階はLDKと水回りを集約した、家事効率の高い設計
LDKは一体感のあるレイアウトで、視線が抜ける開放的な空間構成。キッチンから洗面・浴室までの動線を短くまとめ、毎日の家事をスムーズに行えます。

■ 2階は全室独立型で、プライバシーを確保
主寝室と洋室2室の3部屋を配置。すべての居室が廊下から出入りでき、子ども部屋や在宅ワーク、来客対応など、多様なライフスタイルに対応します。

■ 生活動線に配慮した、適材適所の収納計画
各居室の収納に加え、階段下やホールにも収納スペースを確保。収納不足になりがちな建売住宅の課題を、設計段階から解消しています。

■ 家族構成の変化に対応する、長く住める間取り
共働き世帯から子育て期、将来のライフスタイル変化までを見据えたプラン。住み替えのリスクを抑え、安心して長く暮らせる住まいです。

参考価格

1,925万円~(税抜)